+ Tham gia nhóm Zalo BẢN VẼ NHÀ ĐẸP
+ Zalo hỗ trợ 0912.07.64.66 bạn cần tìm tài liệu gì nhắn tin zalo này
+ Xem thêm: Thư viện Bản vẽ Miễn Phí
Tác giả: CÔNG TY TNHH TƯ VẤN XÂY DỰNG – ĐO ĐẠC MIỀN NAM
Số trang: 17 trang
Định dạng file: word
Đề cương quan trắc lún nghiêng công trình lân cận
Nội dung tài liệu:
Phần A. Thuyết minh chung
- Giới thiệu
- Cơ sở lập đề cương
2.1. Cơ sở pháp lý
2.2. Tiêu chuẩn áp dụng
- Mục đích
- Nội dung công việc
- Báo cáo kỹ thuật
- Quy trình nghiệm thu
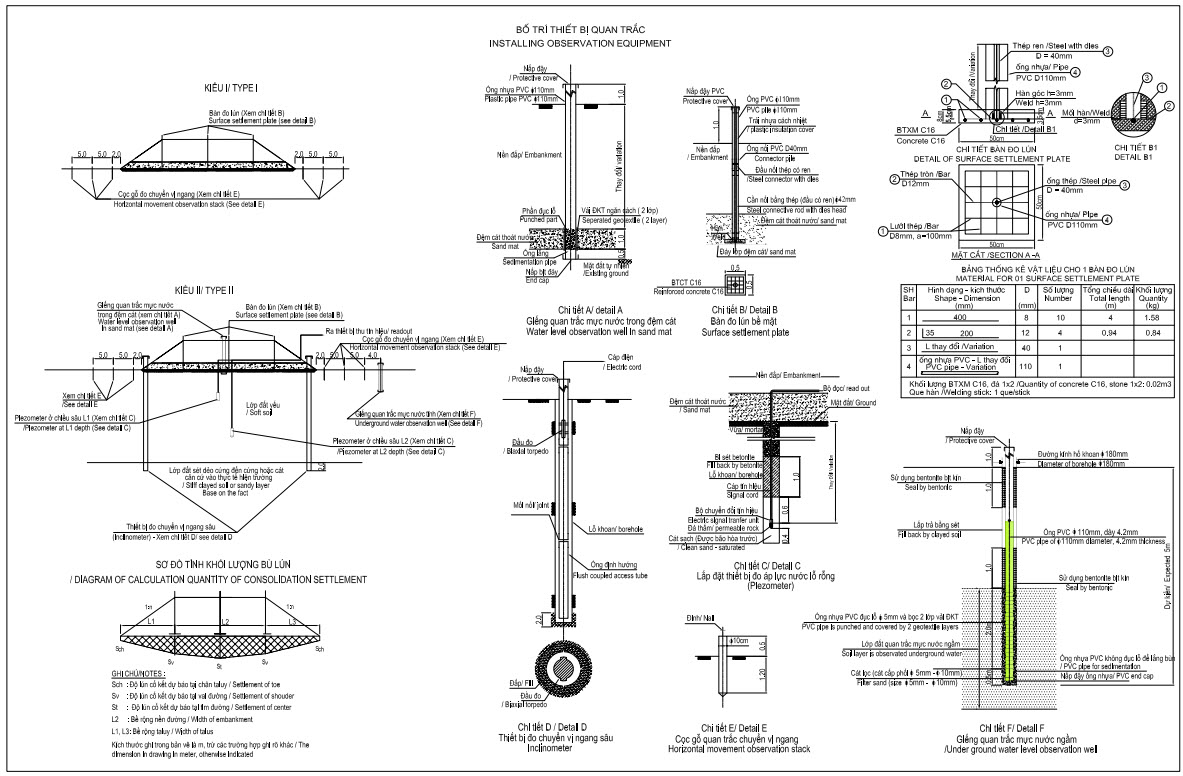
Phần B. Phương pháp quan trắc lún
- Mốc chuẩn
- Mốc quan trắc lún
2.1. Yêu cầu kỹ thuật
2.2. Biện pháp thi công
- Lựa chọn cấp hạng đo lún
- Thiết bị quan trắc
- Phương pháp quan trắc
- Phương pháp xử lý số liệu
6.1 Xử lý số liệu
6.2 Giá trị cảnh báo
Phần C. Quan trắc nghiêng và chuyển vị ngang đỉnh tường vây
- Mốc quan trắc
1.1. Mốc chuẩn
1.2. Đánh giá độ ổn định mốc chuẩn quan trắc nghiêng
1.3. Mốc quan trắc nghiêng
1.4. Mốc quan trắc chuyển vị ngang đỉnh tường vây
- Thiết bị quan trắc
- Phương pháp quan trắc
3.1. Phương pháp
3.2. Độ chính xác
3.3. Giá trị cảnh báo về giá trị độ nghiêng và chuyển vị
- Phương pháp xử lý số liệu
- Kiểm soát chất lượng
- An toàn lao động và vệ sinh môi trường


Danh sách khóa học hay mà bạn nên tham gia:
| STT | Danh sách khóa học | Link khóa học |
|---|---|---|
| 1 | Full Kho tài liệu xây dựng 30GB | CHI TIẾT TÀI LIỆU |
| 2 | Thư viện Sketchup khổng lồ 900 Gb | CHI TIẾT TÀI LIỆU |
| 3 | Combo 4 khóa học Sketchup cơ bản và nâng cao | CHI TIẾT TÀI LIỆU |
| 4 | Commbo tài liệu học 80 khóa học REVIT - TELKA - ETAP - SAP - BIM ... | CHI TIẾT TÀI LIỆU |
| 5 | Combo khóa học Autocad cơ bản và nâng cao | CHI TIẾT TÀI LIỆU |
| 6 | Combo 15 khóa học Revit từ cơ bản đến nâng cao | CHI TIẾT TÀI LIỆU |
| 7 | Combo 7 khóa học Photoshop thực chiến từ nền tảng đến chuyên sâu | CHI TIẾT TÀI LIỆU |
| 8 | Combo 8 khóa học tinh học văn phòng từ cơ bản đến nâng cao | CHI TIẾT TÀI LIỆU |
| 9 | Khóa học Etabs - Safe | CHI TIẾT TÀI LIỆU |
| 10 | Khóa học họa viên kiến trúc | CHI TIẾT TÀI LIỆU |
| 11 | Tổng hợp mẫu nhà đẹp năm 2025 | CHI TIẾT TÀI LIỆU |
| 12 | Phần mềm Lập và Quản lý hồ sơ chất lượng AZHOME | CHI TIẾT TÀI LIỆU |
| 13 | Phần mềm Lisp Hỗ trợ thiết kế đường | CHI TIẾT TÀI LIỆU |
| 14 | Phần mềm tiện ích XDAddins Excel PRO | CHI TIẾT TÀI LIỆU |
| 15 | Combo 7 khóa học dự toán – dự thầu – thanh quyết toán giá 199K | CHI TIẾT TÀI LIỆU |
| 16 | Full 9 khóa học thiết kế xây dựng dân dụng – Giá 199K | CHI TIẾT TÀI LIỆU |
🔐 Lấy mật khẩu tài liệu
Ngoài ra, đơn vị chúng tôi còn nhận thiết kế theo yêu cầu:
* Cam kết đảm bảo chất lượng – tiến độ thiết kế;
* Phục vụ Quý Khách hàng tận tình, chu đáo;
* Hồ sơ thiết kế bản vẽ thi công xây dựng giá cả tốt nhất: 60.000₫-70.000₫/m2.
☎☎ LIÊN HỆ NGAY VỚI CHÚNG TÔI (Phục vụ toàn quốc)
☎ Hotline/Zalo: 0337.69.14.68
(Tư vấn miễn phí) Nguồn: https://Banvenhadep.net
BẠN CÓ THỂ MUA TRỰC TIẾP BẢN VẼ BẰNG CÁCH SAU :
Phí tải bản vẽ: 50.000đ-500.000đ
Bước 2: Copy link tài liệu này trên thanh địa chỉ gửi vào Zalo 0337.69.14.68 để nhận tài liệu.
Cách khác: Đăng kí tài khoản VIP tải miễn phí 1 năm và vào group nhận bản vẽ mới mỗi ngày là 500K qua Zalo 0337.69.14.68.







Đánh giá
Chưa có đánh giá nào.