👤 Tác giả: Sưu tầm
📂 Định dạng: pdf / word / excel / cad...
🧩 Mã sản phẩm: BANVENHADEP-82700
Link tải tài liệu:
🔐 Lấy mật khẩu tài liệu cuối bài viết.
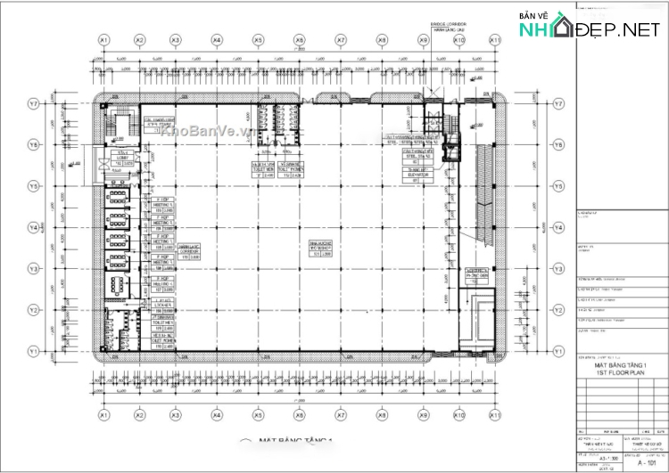
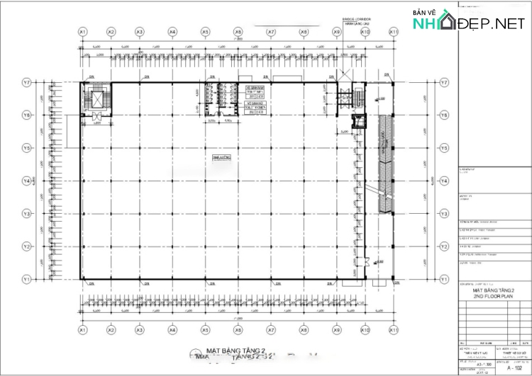
Bản vẽ thiết kế nhà xưởng, nhà máy sản xuất linh kiện điện tử 3 tầng kích thước 45x72m.
Công năng thiết kế các tầng:
– Tầng 1: Nhà xưởng sản xuất chính, Các phòng họp, 02 khu Wc, phòng thay đồ, phòng điện, 02 vị trí cầu thang thép, thang máy, đường dốc lên nhà để xe T3.
– Tầng 2: Nhà xưởng sản xuất chính, Khu Wc, 02 vị trí cầu thang thép, đường dốc lên nhà để xe T3.
– Tầng 3: Khối văn phòng (Phòng giám đốc, phòng kế toán, 02 phòng họp lơn, phòng họp nhỏ, khu wc văn phòng, Nhà để xe.
Thông số thiết kế kết cấu:
– Lưới trục điển hình: 7.5×7.5
– Móng cọc ép PHC D300 – 17m.
– Khung Thép chính:
+ Cột khung chính: H450x250x8x12
+ Dầm khung chính: H650x250x8x12
+ Cột mái: H(350-700)x200x8x10
+ Kèo mái: H(700-400)x200x8x10 <> H(700-400)x200x8x10 <> H(400-550)x200x8x10
– Sàn Deck dày 150mm, tấm deck H50-W950
– Xà gồ C200x50x20x2
Hồ sơ bản vẽ bao gồm:
– Bản vẽ kiến trúc đầy đủ thiết kế thi công:
+ Mặt bằng các tầng, mặt đứng, mặt cắt
+ Chi tiết điển hình
+ Chi tiết thang, wc
+ Mặt bằng trần, sàn
+ Mặt bằng cửa, chi tiết cửa
– Bản vẽ kết cấu phần Bê tông: Kết cấu móng, kết cấu nền tầng 1, chi tiế rãnh kỹ thuật điện, kết cấu sàn deck tầng 2, tầng 3, kết cấu bản dốc.
– Bản vẽ kết cấu thép (Chưa bao gồm thang bộ, mái sảnh):
+ Mặt bằng cột thép các tầng, mặt bằng dầm các tầng, mặt bằng khung kèo – giằng chéo, mặt bằng xà gồ ..
+ Đầy đủ mặt cắt khung các trục điển hình.
+ Mặt cắt giằng đầu cột
+ Mặt đứng khung Panel
+ Chi tiêt kết cấu đường dốc
+ Các bản vẽ chi tiết liên kết khung.










Đánh giá
Chưa có đánh giá nào.