👤 Tác giả: Sưu tầm
📂 Định dạng: pdf / word / excel / cad...
🧩 Mã sản phẩm: BANVENHADEP-92839
Link tải tài liệu:
🔐 Lấy mật khẩu tài liệu cuối bài viết.
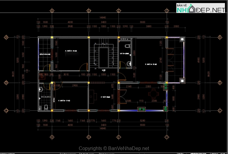
Full bản vẽ thiết kế kỹ thuật thi công nhà mái Nhật 2 tầng kích thước: 8.62x17m. Công năng sử dụng như sau:
+) Tầng 1: 01 phòng khách, 01 phòng ngủ, 01 phòng bếp + ăn, 01 cầu thang, 01 khu wc chung, phòng uống trà
+) Tầng 2: 03 phòng ngủ, 01 phòng thờ, 01 sân phơi, 01 wc chung, 01 khu sân chơi
+) Mái: Mái lợp ngói hoặc tôn giả ngói chống nóng
Kính gửi A/c/e tham khảo lựa chọn phương án xây dựng tối ưu !
********************************************************
Bản vẽ đảm bảo đúng tiêu chuẩn của chuyên ngành thiết kế kiến trúc, đã được triển khai thi công xây dựng cho khách hàng. Chúng tôi cam kết mang đến cho bạn bản vẽ AutoCAD chất lượng cao và đáp ứng đầy đủ các yêu cầu thiết kế của bạn. Hãy liên hệ với chúng tôi ngay hôm nay để bắt đầu chặng hành trình xây dựng ngôi nhà mơ ước của bạn!
* Hồ sơ thiết kế nhà phố trong xây nhà hiện nay đóng vai trò rất quan trọng, toàn bộ hồ sơ thiết kế sẽ quyết định toàn bộ giá trị tổng thể của một ngôi nhà, dù lớn hay nhỏ từ Kiến Trúc, Kết Cấu, Điện, Nước trước khi bắt đầu tiến hành các công tác thi công xây dựng ngoài công trường thực tế…
********************************************************
Ngoài ra, đơn vị chúng tôi còn nhận thiết kế theo yêu cầu:
* Cam kết đảm bảo chất lượng – tiến độ thiết kế;
* Phục vụ Quý Khách hàng tận tình, chu đáo;
* Hồ sơ thiết kế bản vẽ thi công xây dựng giá cả tốt nhất: 60.000₫-70.000₫/m2.
LIÊN HỆ NGAY VỚI CHÚNG TÔI (Phục vụ toàn quốc)
Hotline/Zalo: 0858.976.268 (Tư vấn miễn phí)
Nguồn:banvenhadep.net
#zalo_ 0858.976.268
#HỒ_SƠ_THIẾT_KẾ_NHÀ,
#HO_SO_THIET_KE_NHA,
#Ho_So_Thiet_Ke,
#bản_vẽ_nhà_đẹp,
#Ban_ve_nha_dep
#sđt_0858.976.268
#zalo_0858.976.268
#nhadep_0858.976.268
#tài_liệu_xây_dựng,
#hồ_sơ_nhà_đẹp,
#Hosothietke,
#banvenhadep,
#tailieuthietke,
#tailieuxaydung,
#Hosonhadep,
# banvenhadep.net
banvenhadep.net – 0858.976.268














Đánh giá
Chưa có đánh giá nào.