👤 Tác giả: Sưu tầm
📂 Định dạng: pdf / word / excel / cad...
🧩 Mã sản phẩm: BANVENHADEP-29890
Link tải tài liệu:
🔐 Lấy mật khẩu tài liệu cuối bài viết.
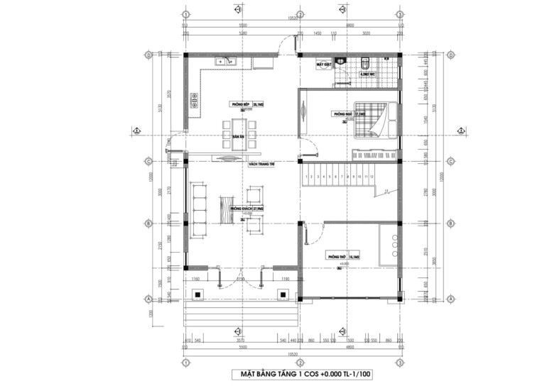
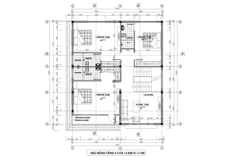
Mẫu biệt thự mái Nhật 10,52x12m.
** Công năng : 1 phòng khách, 1 thờ, 4 phòng ngủ + 1 , 3 WC
-Gồm đầy đủ hồ sơ: Kiến trúc, kết cấu, điện nước xây dựng .

Ngoài ra, đơn vị chúng tôi còn nhận thiết kế theo yêu cầu:
* Cam kết đảm bảo chất lượng – tiến độ thiết kế;
* Phục vụ Quý Khách hàng tận tình, chu đáo;
* Hồ sơ thiết kế bản vẽ thi công xây dựng giá cả tốt nhất: 60.000₫-70.000₫/m2.
☎☎ LIÊN HỆ NGAY VỚI CHÚNG TÔI (Phục vụ toàn quốc)
☎ Hotline/Zalo: 0902.038.666 (Tư vấn miễn phí)
Nguồn: https://Banvenhadep.net















Đánh giá
Chưa có đánh giá nào.