👤 Tác giả: Sưu tầm
📂 Định dạng: pdf / word / excel / cad...
🧩 Mã sản phẩm: BANVENHADEP-26722
Link tải tài liệu:
🔐 Lấy mật khẩu tài liệu cuối bài viết.
Nhà phố 3 tầng mái bằng, bố trí công năng thoáng đẹp vô cùng hợp lí với đầy đủ file hồ sơ thi công, sketchup dựng kỹ cả ngoại thất và tường xây bên trong công trình. Anh em tải về chỉnh sửa sơ hoặc dùng thi công trực tiếp đều đạt tiêu chuẩn. File đẹp và tỉ mỉ, nghiên cứu làm tư liệu mẫu rất có ích.
Công năng các tầng như sau:
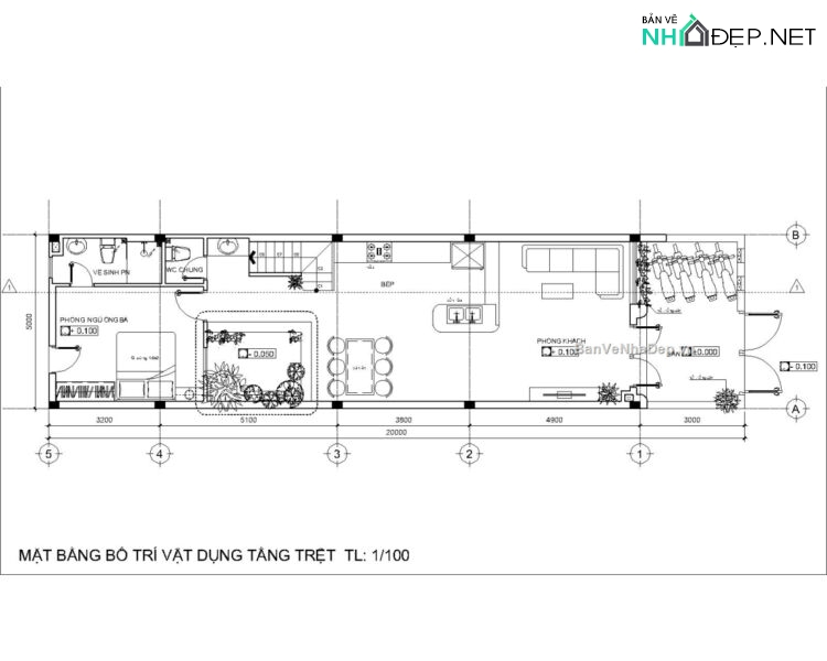
– Tầng 1: Sân trước, phòng khách, bếp ăn, khoảng đệm, kho, wc chung, phòng ngủ + wc
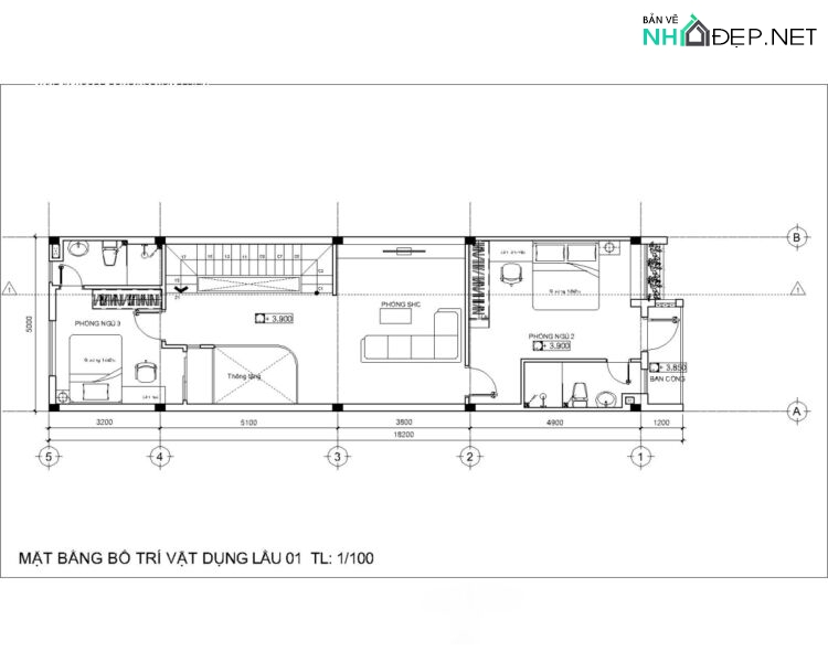
– Tầng 2: 2 phòng ngủ + 2wc, ban công, sinh hoạt chung, thông tầng
– Tầng 3: phòng thờ, phòng giặt + sân phơi, Sân thượng
Cám ơn anh em ủng hộ! Chúc anh em thuận lợi may mắn.














Đánh giá
Chưa có đánh giá nào.