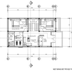
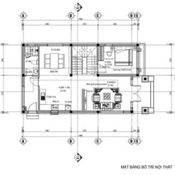
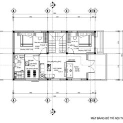
Mẫu nhà mái Nhật 2 Tầng đơn giản, thông thoáng..
– Kích thước :7 x12m .
– Công năng: Gồm 3p ngủ, 1p sinh hoạt chung, 1p thờ,1p khách, 1 bếp ăn, 2p tắm +wc

Ngoài ra, đơn vị chúng tôi còn nhận thiết kế theo yêu cầu:
* Cam kết đảm bảo chất lượng – tiến độ thiết kế;
* Phục vụ Quý Khách hàng tận tình, chu đáo;
* Hồ sơ thiết kế bản vẽ thi công xây dựng giá cả tốt nhất: 60.000₫-70.000₫/m2.
☎☎ LIÊN HỆ NGAY VỚI CHÚNG TÔI (Phục vụ toàn quốc)
☎ Hotline/Zalo: 0904.87.33.88
(Tư vấn miễn phí) Nguồn: https://Banvenhadep.net




















Đánh giá
Chưa có đánh giá nào.