+ Tham gia nhóm Zalo BẢN VẼ NHÀ ĐẸP
+ Zalo hỗ trợ 0912.07.64.66 bạn cần tìm tài liệu gì nhắn tin zalo này
+ Xem thêm: Thư viện Bản vẽ Miễn Phí
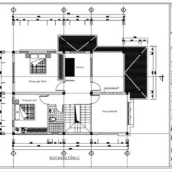
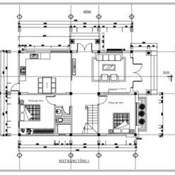
+ Tầng 1: 2 phòng ngủ, phòng khách và bếp và 1 WC
Full đầy đủ hồ sơ: kiến trúc, kết cấu, điện nước

Hồ sơ bao gồm :
01 – Kiến trúc
02- Kết cấu
03- Điện
04 – Nước
05 – Dự toán Chi Phí
06 – Phối cảnh 3D
Ngoài ra, đơn vị chúng tôi còn nhận thiết kế theo yêu cầu:
* Cam kết đảm bảo chất lượng – tiến độ thiết kế;
* Phục vụ Quý Khách hàng tận tình, chu đáo;
* Hồ sơ thiết kế bản vẽ thi công xây dựng giá cả tốt nhất: 60.000₫-70.000₫/m2.
☎☎ LIÊN HỆ NGAY VỚI CHÚNG TÔI (Phục vụ toàn quốc)
☎ Hotline/Zalo: 0902.038.666 (Tư vấn miễn phí)
Nguồn: https://Banvenhadep.net
Danh sách khóa học hay mà bạn nên tham gia:
| STT | Danh sách khóa học | Link khóa học |
|---|---|---|
| 1 | Full Kho tài liệu xây dựng 30GB | CHI TIẾT TÀI LIỆU |
| 2 | Thư viện Sketchup khổng lồ 900 Gb | CHI TIẾT TÀI LIỆU |
| 3 | Combo 4 khóa học Sketchup cơ bản và nâng cao | CHI TIẾT TÀI LIỆU |
| 4 | Commbo tài liệu học 80 khóa học REVIT - TELKA - ETAP - SAP - BIM ... | CHI TIẾT TÀI LIỆU |
| 5 | Combo khóa học Autocad cơ bản và nâng cao | CHI TIẾT TÀI LIỆU |
| 6 | Combo 15 khóa học Revit từ cơ bản đến nâng cao | CHI TIẾT TÀI LIỆU |
| 7 | Combo 7 khóa học Photoshop thực chiến từ nền tảng đến chuyên sâu | CHI TIẾT TÀI LIỆU |
| 8 | Combo 8 khóa học tinh học văn phòng từ cơ bản đến nâng cao | CHI TIẾT TÀI LIỆU |
| 9 | Khóa học Etabs - Safe | CHI TIẾT TÀI LIỆU |
| 10 | Khóa học họa viên kiến trúc | CHI TIẾT TÀI LIỆU |
| 11 | Tổng hợp mẫu nhà đẹp năm 2025 | CHI TIẾT TÀI LIỆU |
| 12 | Phần mềm Lập và Quản lý hồ sơ chất lượng AZHOME | CHI TIẾT TÀI LIỆU |
| 13 | Phần mềm Lisp Hỗ trợ thiết kế đường | CHI TIẾT TÀI LIỆU |
| 14 | Phần mềm tiện ích XDAddins Excel PRO | CHI TIẾT TÀI LIỆU |
| 15 | Combo 7 khóa học dự toán – dự thầu – thanh quyết toán giá 199K | CHI TIẾT TÀI LIỆU |
| 16 | Full 9 khóa học thiết kế xây dựng dân dụng – Giá 199K | CHI TIẾT TÀI LIỆU |
🔐 Lấy mật khẩu tài liệu
Ngoài ra, đơn vị chúng tôi còn nhận thiết kế theo yêu cầu:
* Cam kết đảm bảo chất lượng – tiến độ thiết kế;
* Phục vụ Quý Khách hàng tận tình, chu đáo;
* Hồ sơ thiết kế bản vẽ thi công xây dựng giá cả tốt nhất: 60.000₫-70.000₫/m2.
☎☎ LIÊN HỆ NGAY VỚI CHÚNG TÔI (Phục vụ toàn quốc)
☎ Hotline/Zalo: 0337.69.14.68
(Tư vấn miễn phí) Nguồn: https://Banvenhadep.net
BẠN CÓ THỂ MUA TRỰC TIẾP BẢN VẼ BẰNG CÁCH SAU :
Phí tải bản vẽ: 50.000đ-500.000đ
Bước 2: Copy link tài liệu này trên thanh địa chỉ gửi vào Zalo 0337.69.14.68 để nhận tài liệu.
Cách khác: Đăng kí tài khoản VIP tải miễn phí 1 năm và vào group nhận bản vẽ mới mỗi ngày là 500K qua Zalo 0337.69.14.68.


















Đánh giá
Chưa có đánh giá nào.