👤 Tác giả: Sưu tầm
📂 Định dạng: pdf / word / excel / cad...
🧩 Mã sản phẩm: BANVENHADEP-87104
Link tải tài liệu:
🔐 Lấy mật khẩu tài liệu cuối bài viết.
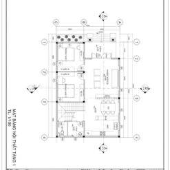
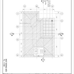
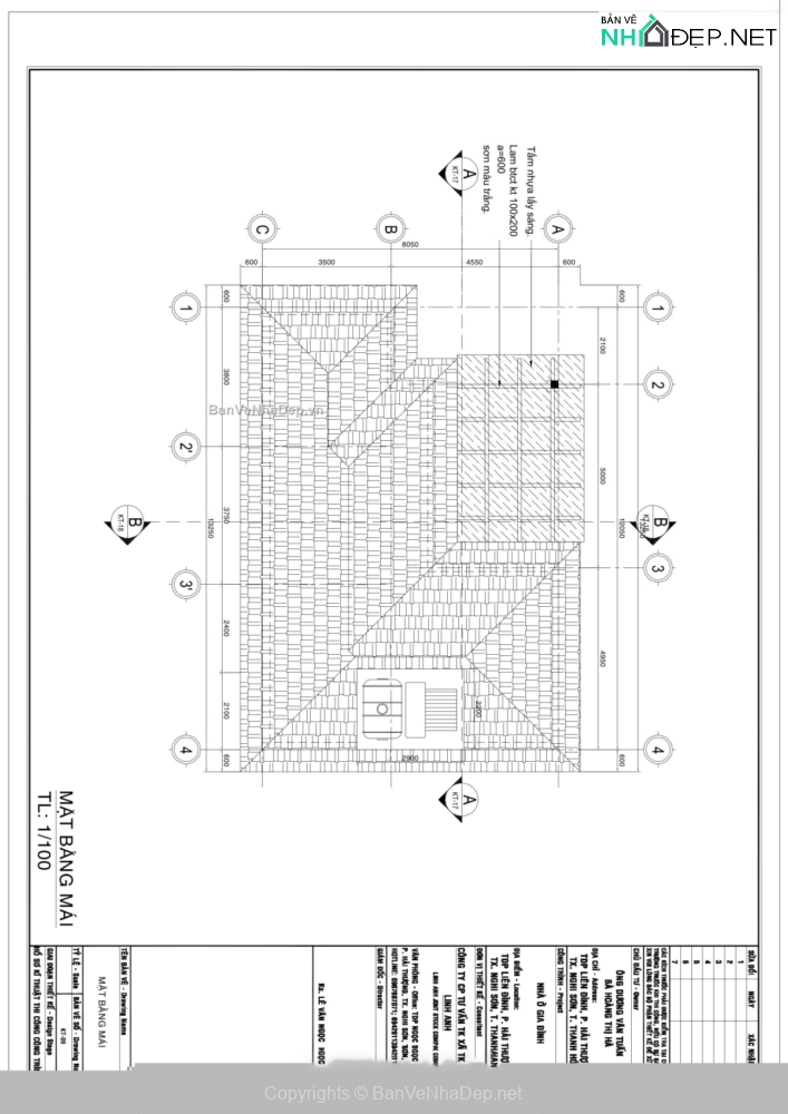
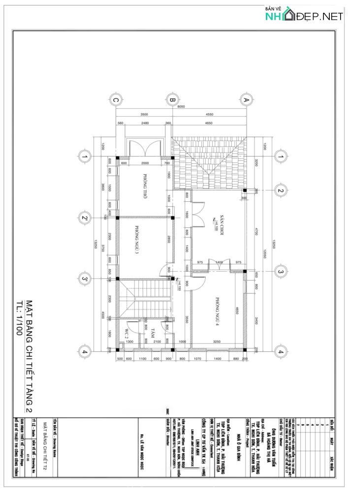
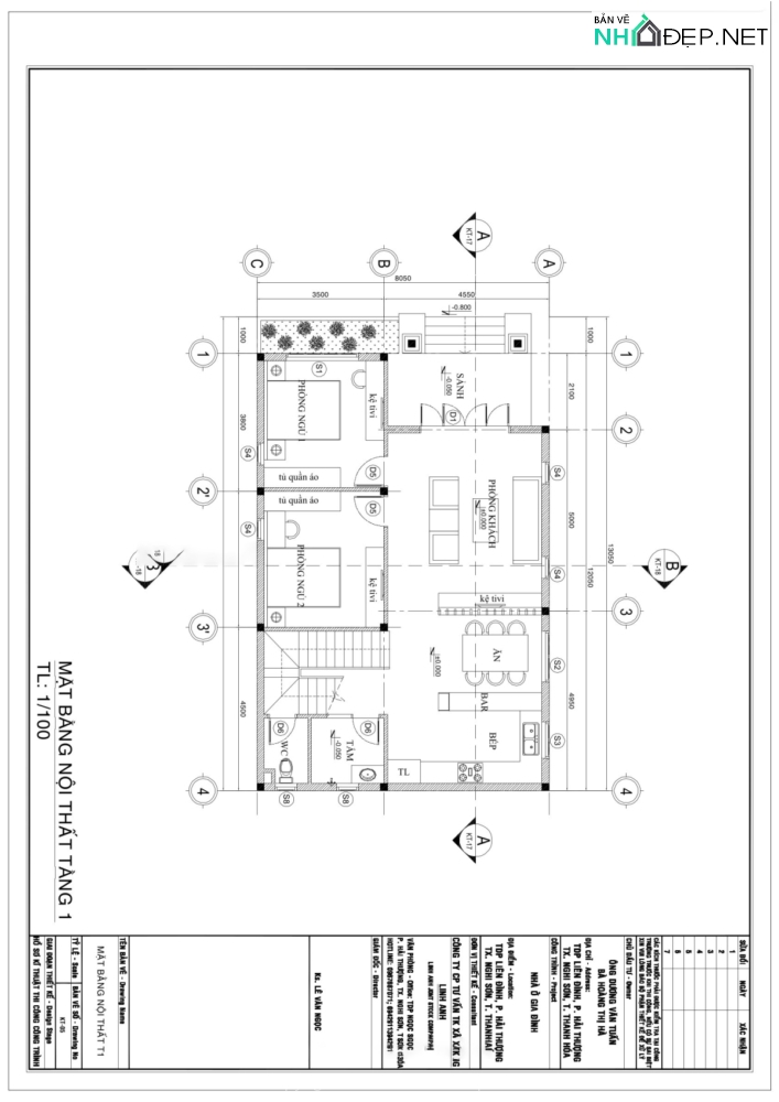
Công năng sử dụng của thiết kế biệt thự 2 tầng diện tích thiết kế 8.05×12.05m bao gồm:
+ tầng 1: khách, bếp, 2 phòng ngủ, 1 wc
+ tầng 2: 2 phòng ngủ, phòng thờ, sân chơi, 1 wc
mẫu biệt thự 2 tầng kiểu mới luôn được rất nhiều khách hàng lựa chọn, mình đóng góp lên trang cho anh em tham khảo ạ.
********************************************************
Bản vẽ đảm bảo đúng tiêu chuẩn của chuyên ngành thiết kế kiến trúc, đã được triển khai thi công xây dựng cho khách hàng. Chúng tôi cam kết mang đến cho bạn bản vẽ AutoCAD chất lượng cao và đáp ứng đầy đủ các yêu cầu thiết kế của bạn. Hãy liên hệ với chúng tôi ngay hôm nay để bắt đầu chặng hành trình xây dựng ngôi nhà mơ ước của bạn!
* Hồ sơ thiết kế nhà phố trong xây nhà hiện nay đóng vai trò rất quan trọng, toàn bộ hồ sơ thiết kế sẽ quyết định toàn bộ giá trị tổng thể của một ngôi nhà, dù lớn hay nhỏ từ Kiến Trúc, Kết Cấu, Điện, Nước trước khi bắt đầu tiến hành các công tác thi công xây dựng ngoài công trường thực tế…
********************************************************
Ngoài ra, đơn vị chúng tôi còn nhận thiết kế theo yêu cầu:
* Cam kết đảm bảo chất lượng – tiến độ thiết kế;
* Phục vụ Quý Khách hàng tận tình, chu đáo;
* Hồ sơ thiết kế bản vẽ thi công xây dựng giá cả tốt nhất: 60.000₫-70.000₫/m2.
LIÊN HỆ NGAY VỚI CHÚNG TÔI (Phục vụ toàn quốc)
Hotline/Zalo: 0858.976.268 (Tư vấn miễn phí)
Nguồn:banvenhadep.net














Đánh giá
Chưa có đánh giá nào.