👤 Tác giả: Sưu tầm
📂 Định dạng: pdf / word / excel / cad...
🧩 Mã sản phẩm: BANVENHADEP-98480
Link tải tài liệu:
🔐 Lấy mật khẩu tài liệu cuối bài viết.
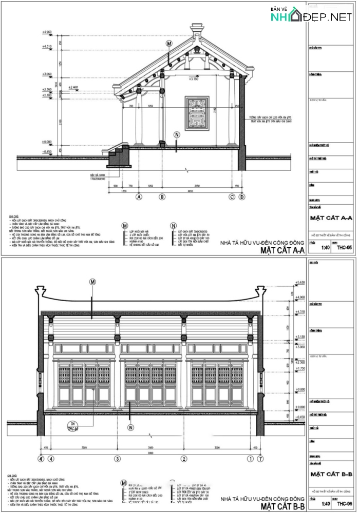
Bộ bản vẽ thiết kế nhà thờ họ 3 gian kích thước 6×9.9m.
Thông tin vật liệu:
– Nền lát gạch bát 300×30050, mạch chữ công
– Chân tảng và bậc cấp làm bằng đá xanh
– Tường bao 220 xây gạch chỉ mác 75, trát tường mác 75, Mặt trong sơn màu trắng, mặt ngoài sơn máu ghi sáng
– Hệ cửa thượng song hạ bản làm bằng gỗ lim, cửa sổ chữ thọ nan bê tông
– Kết cấu chịu lực chính bằng gỗ lim
– Mái lợp ngói mũ hài truyền thống, bờ nóc bờ chảy xây trát vữa xi măng, sơn màu ghi sáng
– Kết cấu móng gạch
Hồ sơ bản vẽ bao gồm:
– Bản vẽ Autocad Kiến trúc đầy đủ Mặt bằng mặt đứng mặt cắt, chi tiết cấu kiện, chi tiết liên kết …
– Thiết kế điện
– Thiết kế PCCC
– Bản vẽ kết cấu
– Thiết kế chống mối












Đánh giá
Chưa có đánh giá nào.