👤 Tác giả: Sưu tầm
📂 Định dạng: pdf / word / excel / cad...
🧩 Mã sản phẩm: BANVENHADEP-51759
Link tải tài liệu:
🔐 Lấy mật khẩu tài liệu cuối bài viết.
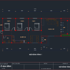
Bản vẽ thiết kế kỹ thuật thi công phần ảnh 3D ngoại thất, kiến trúc, kết cấu, điện nước nhà biệt thự 1 tầng mái nhật kích thước: 8.5×17.2m. Công năng sử dụng bao gồm:
+) Tầng 1: 02 sảnh hiên, 01 phòng khách, 01 phòng thờ, 04 phòng ngủ (có 1 phòng ngủ có wc khép kín), 01 phòng bếp + ăn, 01 phòng wc chung
+) Mái: Lợp mái chống nóng
Kính gửi Anh chị em tham khảo, lựa chọn phương án tối ưu cho ngôi nhà dự kiến sẽ xây dựng hợp lý nhất!








Ngoài ra, đơn vị chúng tôi còn nhận thiết kế theo yêu cầu:
* Cam kết đảm bảo chất lượng – tiến độ thiết kế;
* Phục vụ Quý Khách hàng tận tình, chu đáo;
* Hồ sơ thiết kế bản vẽ thi công xây dựng giá cả tốt nhất: 60.000₫-70.000₫/m2.
☎☎ LIÊN HỆ NGAY VỚI CHÚNG TÔI (Phục vụ toàn quốc)
☎ Hotline/Zalo: 0902.038.666 (Tư vấn miễn phí)
Nguồn: https://Banvenhadep.net


















Đánh giá
Chưa có đánh giá nào.