+ Tham gia nhóm Zalo BẢN VẼ NHÀ ĐẸP
+ Zalo hỗ trợ 0912.07.64.66 bạn cần tìm tài liệu gì nhắn tin zalo này
+ Xem thêm: Thư viện Bản vẽ Miễn Phí
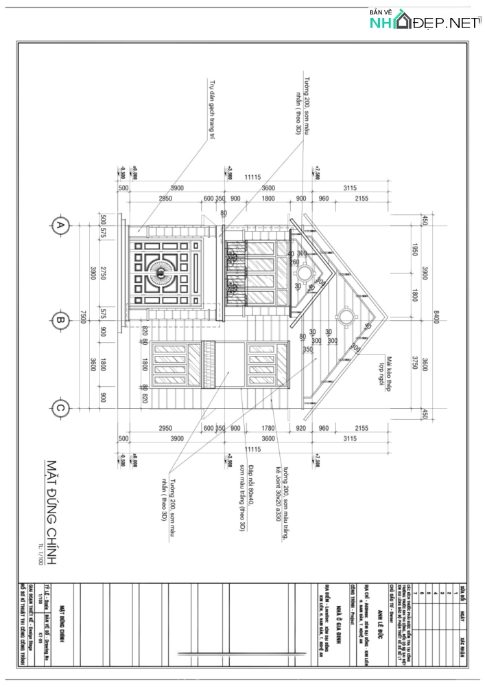
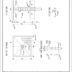
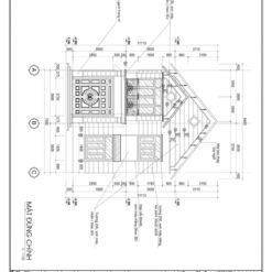
Thiết kế biệt thự 2 tầng 7.5×12.9m
Công năng sử dụng bao gồm:
+ tầng 1: khách, bếp, 2 phòng ngủ, 1 wc
+ tầng 2: 2 phòng ngủ, phòng thờ, sân chơi, 1 wc
mẫu biệt thự 2 tầng hiện đại luôn được rất nhiều khách hàng lựa chọn.
********************************************************
Bản vẽ đảm bảo đúng tiêu chuẩn của chuyên ngành thiết kế kiến trúc, đã được triển khai thi công xây dựng cho khách hàng. Chúng tôi cam kết mang đến cho bạn bản vẽ AutoCAD chất lượng cao và đáp ứng đầy đủ các yêu cầu thiết kế của bạn. Hãy liên hệ với chúng tôi ngay hôm nay để bắt đầu chặng hành trình xây dựng ngôi nhà mơ ước của bạn!
* Hồ sơ thiết kế nhà phố trong xây nhà hiện nay đóng vai trò rất quan trọng, toàn bộ hồ sơ thiết kế sẽ quyết định toàn bộ giá trị tổng thể của một ngôi nhà, dù lớn hay nhỏ từ Kiến Trúc, Kết Cấu, Điện, Nước trước khi bắt đầu tiến hành các công tác thi công xây dựng ngoài công trường thực tế…
********************************************************
Ngoài ra, đơn vị chúng tôi còn nhận thiết kế theo yêu cầu:
* Cam kết đảm bảo chất lượng – tiến độ thiết kế;
* Phục vụ Quý Khách hàng tận tình, chu đáo;
* Hồ sơ thiết kế bản vẽ thi công xây dựng giá cả tốt nhất: 60.000₫-70.000₫/m2.
LIÊN HỆ NGAY VỚI CHÚNG TÔI (Phục vụ toàn quốc)
Hotline/Zalo: 0858.976.268 (Tư vấn miễn phí)
Nguồn:banvenhadep.net

Ngoài ra, đơn vị chúng tôi còn nhận thiết kế theo yêu cầu:
* Cam kết đảm bảo chất lượng – tiến độ thiết kế;
* Phục vụ Quý Khách hàng tận tình, chu đáo;
* Hồ sơ thiết kế bản vẽ thi công xây dựng giá cả tốt nhất: 60.000₫-70.000₫/m2.
☎☎ LIÊN HỆ NGAY VỚI CHÚNG TÔI (Phục vụ toàn quốc)
☎ Hotline/Zalo: 0902.038.666 (Tư vấn miễn phí)
Nguồn: https://Banvenhadep.net
Danh sách khóa học hay mà bạn nên tham gia:
| STT | Danh sách khóa học | Link khóa học |
|---|---|---|
| 1 | Full Kho tài liệu xây dựng 30GB | CHI TIẾT TÀI LIỆU |
| 2 | Thư viện Sketchup khổng lồ 900 Gb | CHI TIẾT TÀI LIỆU |
| 3 | Combo 4 khóa học Sketchup cơ bản và nâng cao | CHI TIẾT TÀI LIỆU |
| 4 | Commbo tài liệu học 80 khóa học REVIT - TELKA - ETAP - SAP - BIM ... | CHI TIẾT TÀI LIỆU |
| 5 | Combo khóa học Autocad cơ bản và nâng cao | CHI TIẾT TÀI LIỆU |
| 6 | Combo 15 khóa học Revit từ cơ bản đến nâng cao | CHI TIẾT TÀI LIỆU |
| 7 | Combo 7 khóa học Photoshop thực chiến từ nền tảng đến chuyên sâu | CHI TIẾT TÀI LIỆU |
| 8 | Combo 8 khóa học tinh học văn phòng từ cơ bản đến nâng cao | CHI TIẾT TÀI LIỆU |
| 9 | Khóa học Etabs - Safe | CHI TIẾT TÀI LIỆU |
| 10 | Khóa học họa viên kiến trúc | CHI TIẾT TÀI LIỆU |
| 11 | Tổng hợp mẫu nhà đẹp năm 2025 | CHI TIẾT TÀI LIỆU |
| 12 | Phần mềm Lập và Quản lý hồ sơ chất lượng AZHOME | CHI TIẾT TÀI LIỆU |
| 13 | Phần mềm Lisp Hỗ trợ thiết kế đường | CHI TIẾT TÀI LIỆU |
| 14 | Phần mềm tiện ích XDAddins Excel PRO | CHI TIẾT TÀI LIỆU |
| 15 | Combo 7 khóa học dự toán – dự thầu – thanh quyết toán giá 199K | CHI TIẾT TÀI LIỆU |
| 16 | Full 9 khóa học thiết kế xây dựng dân dụng – Giá 199K | CHI TIẾT TÀI LIỆU |
🔐 Lấy mật khẩu tài liệu
Ngoài ra, đơn vị chúng tôi còn nhận thiết kế theo yêu cầu:
* Cam kết đảm bảo chất lượng – tiến độ thiết kế;
* Phục vụ Quý Khách hàng tận tình, chu đáo;
* Hồ sơ thiết kế bản vẽ thi công xây dựng giá cả tốt nhất: 60.000₫-70.000₫/m2.
☎☎ LIÊN HỆ NGAY VỚI CHÚNG TÔI (Phục vụ toàn quốc)
☎ Hotline/Zalo: 0337.69.14.68
(Tư vấn miễn phí) Nguồn: https://Banvenhadep.net
BẠN CÓ THỂ MUA TRỰC TIẾP BẢN VẼ BẰNG CÁCH SAU :
Phí tải bản vẽ: 50.000đ-500.000đ
Bước 2: Copy link tài liệu này trên thanh địa chỉ gửi vào Zalo 0337.69.14.68 để nhận tài liệu.
Cách khác: Đăng kí tài khoản VIP tải miễn phí 1 năm và vào group nhận bản vẽ mới mỗi ngày là 500K qua Zalo 0337.69.14.68.


















Đánh giá
Chưa có đánh giá nào.