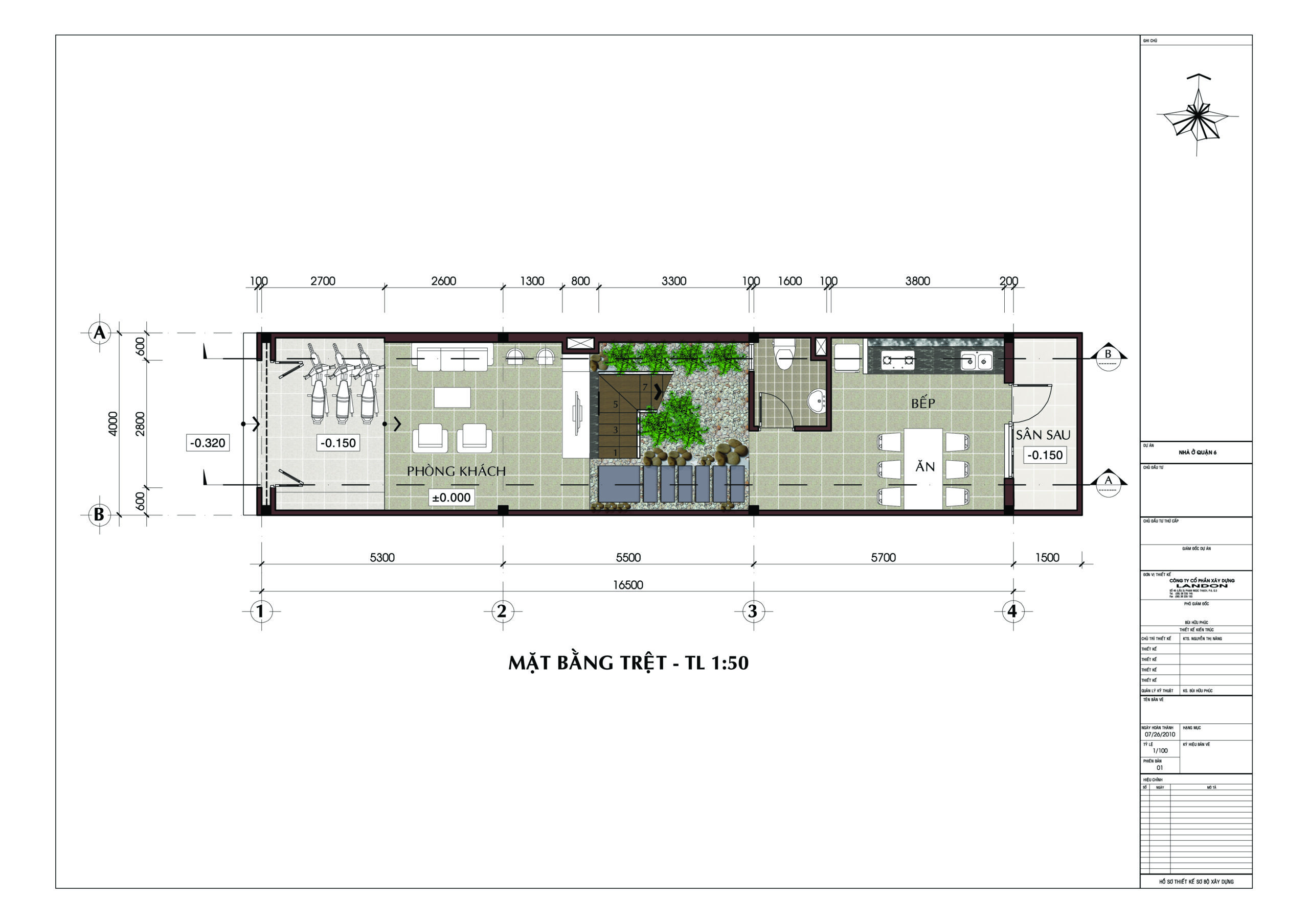
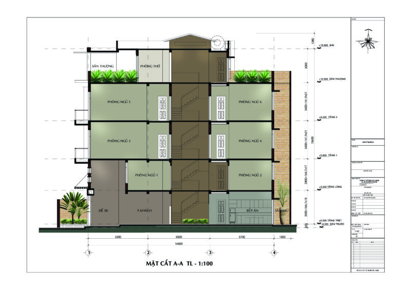
Nhà phố 4 x 16.5m x4 tầng

MIỄN PHÍ

Website Banvenhadep.net cung cấp rất nhiều Bản vẽ Nhà đẹp và tài liệu xây dựng. Các bạn không tìm được bản vẽ nhà đẹp hoặc tài liệu xây dựng thì liên hệ 0912.07.64.66 để chúng tôi tìm giúp bạn.
Download Nhà phố 4 x 16.5m x4tầng

Password giải nén nằm ở cuối phần mô tả.
Mã sản phẩm :NP4X1X1924

LỢI ÍCH CHO KHÁCH HÀNG

Đa Dạng và Phong Phú: Bạn sẽ có cơ hội truy cập vào một nguồn nguồn BẢN VẼ đa dạng và phong phú lớn nhất Việt Nam. Tik Tok Watch Tiết Kiệm Thời Gian và Chi Phí: Thay vì phải tìm kiếm BẢN VẼ ở nhiều nguồn khác nhau, bạn có thể dễ dàng tải về những thông tin quan trọng từ Banvenhadep.net Tik Tok Watch Cập Nhật Liên Tục và Hỗ Trợ 24/7: Khách hàng không chỉ có cơ hội truy cập BẢN VẼ mới nhất mà còn được hỗ trợ liên tục 24/7 Tik Tok Watch

Trang chủ Trang chủ Chat Face Chat Face
Gọi điện
Gọi điện
SMS SMS Chat Zalo Chat Zalo